2BHK Economic Elevation
Durgapur
₹16.99 Lakh
Type
2 BHK
Floors
2
Location
Durgapur
Status
Available
Description
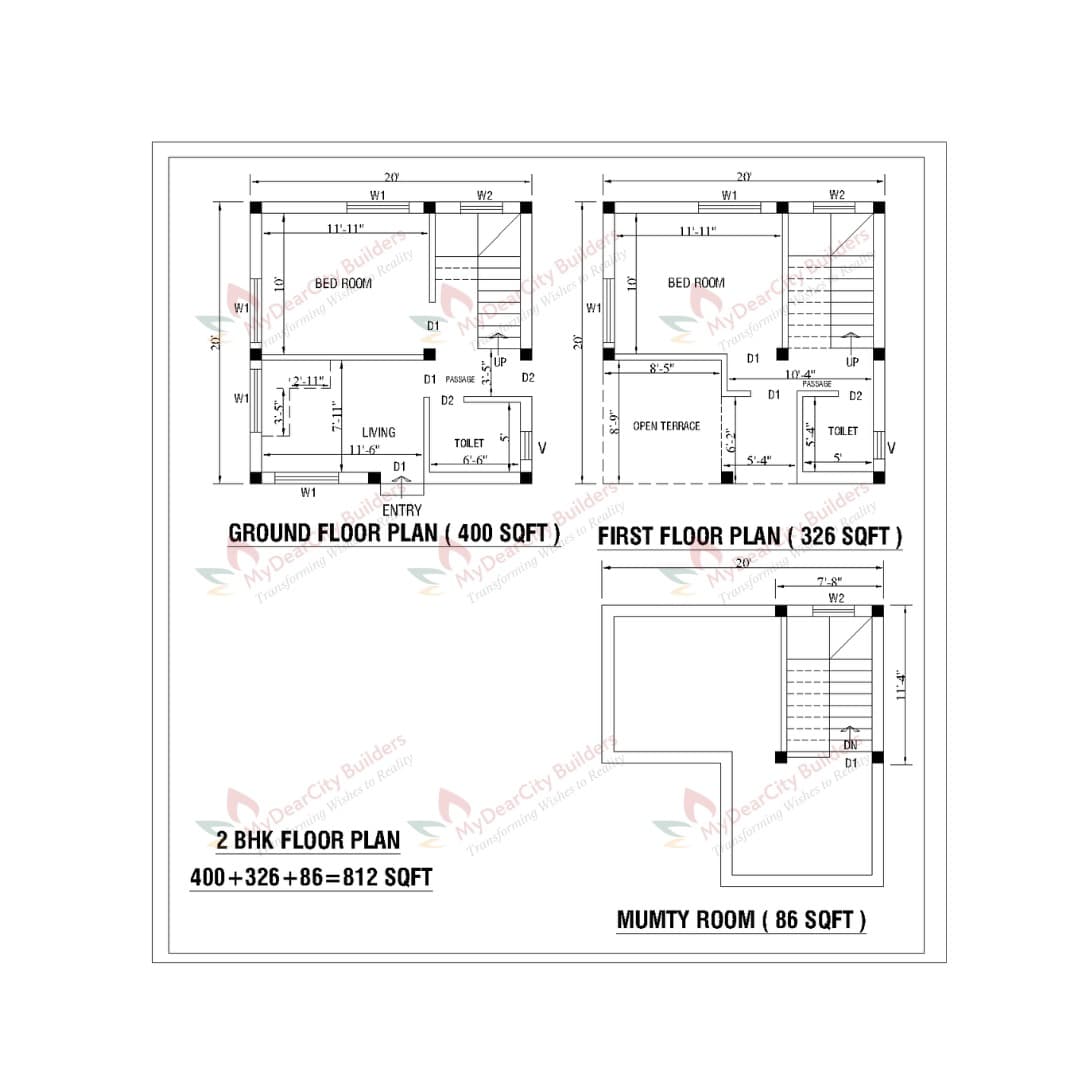
Compact and efficient 2BHK bungalow with modern amenities, featuring a total area of 812 sqft spread across ground floor and first floor. Designed for comfortable living with quality construction materials and thoughtful space planning.
Floor Plans
2 BHK floor plan

Structure & Materials
cement
Birla Unique
steel
Shyam Steel, TATA
Aggregate
12 mm, 40 mm
Bricks
AAC Block
RCC design mix
M20
Ceiling height
10 Feet
Peripherals
Tiles
Flooring And Wall
Nitco, Johnson, Kajaria
Floor Tile Sizes
30×30 cm, 60×60 cm, 80×80 cm, 60×120 cm, 80×160 cm
Wall Tile Sizes
30×60 cm, 40×80 cm, 60×120 cm, 30×45 cm, 80×240 cm, 120×240 cm
Doors
Door Type
Flush Door
Frame
Pine & Kapoor wood - 4x2.5 inch
Windows
Window Type
UPVC window with glass shutter
Electrical
Brands
- Havells
- Reo
- Pritam
- Kolors King
Other Areas
Living
Light Point : 1
Fan Point : 1
Plug Point : 1
Terrace
Light Point : 1
Plug Point : 1
Open Terrace
Light Point : 1
Open Kitchen
Light Point : 1
Chimney Point : 1
Mixture Point : 1
Plug Point : 1
Staircase
Light Point : 2
Two Way Switch Point : 1
Plumbing
Brands
- Supreme
- Finolex
- R Classic
- Prince
Other Areas
Kitchen
Tap Point : 1
Sink Point : 1
Roof
Over Head Water Tank : 1
Painting
Wall putty
Asian Paint, Nerolac Paint, Birla Opus
Exterior Paint
Asian Paint, Nerolac Paint, Birla Opus
Interior Paint
Asian Paint, Nerolac Paint, Birla Opus



